Schulsanierung Vilsbiburg

Kirchenweg, 84137 Vilsbiburg, Germany
Picture © MORPHO-LOGIC

Die Mittelschule Vilsbiburg, Fertigstellung 1971, weist neben der fehlenden Wärmedämmung erhebliche bauliche Mängel an den Fassaden auf. Dies veranlasste 2012 zum Wettbewerb mit dem Ziel einer energetischen Modernisierung des Schulgebäudes.

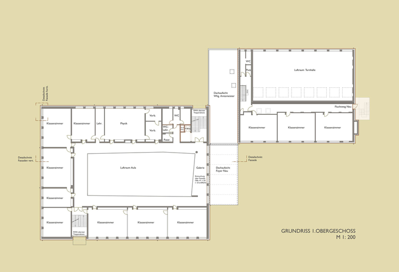
Der Entwurf nimmt die bestehenden Bezüge innerhalb der Stadt Vilsbiburg auf und behält den vorhandenen Materialkanon bei. Der vorhandene Wandaufbau bleibt unverändert und erhält durch vorgefertigte Tafelelemente, die notwendigen energetischen Verbesserungen und durch die vorgehängte hinterlüftete Ziegelfassade eine moderne Gestalt. Der größte Vorteil der vorgefertigten Elemente ist die verkürzte Montagezeit, die eine abschnittsweise Ausführung auch während dem laufenden Schulbetrieb möglich macht.

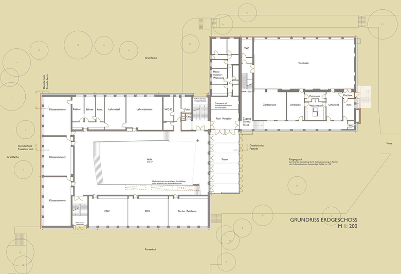
Neben der Überprüfung der Flucht- und Rettungswege des Gebäudes und der Herstellung einer barrierefreien Nutzbarkeit, war der Neubau eines Foyers, Teil des Wettbewerbs. Das geplante Foyer befindet sich unmittelbar vor dem heutigen Haupteingang und verbindet das Hauptgebäude mit dem Turnhallentrakt. Die Aula im Erdgeschoss des Hauptgebäudes erhält durch das neue Foyer einen angemessenen Vorbereich, macht sie für Veranstaltung attraktiv und bindet sie unmittelbar an den Schulhof an.

Planungszeit
seit 2013

Bauherr
Stadt Vilsbiburg

Planung
MORPHO-LOGIC
Michael Gebhard, Prof. Ingrid Burgstaller, M.Sc. Dipl.Ing. Architekten BDA Stadtplaner, Partnerschaftsgesellschaft
Mitarbeit: Christoph Pütz

Ablauf
2013 1. Preis Wettbewerb

Veröffentlichung
competitionline 2013

Picture © MORPHO-LOGIC
Picture © MORPHO-LOGIC
Picture © MORPHO-LOGIC
Picture © MORPHO-LOGIC
Year
2013

Other Projects by MORPHO-LOGIC Architekten BDA Stadtplaner 

Weltacker Nürnberg
Nürnberg, Germany
Wohnen an der Wolnzach
Wolnzach, Germany
Hochschule Görlitz
Görlitz, Germany
Martinsried Ortsmitte
Martinsried, Planegg, Germany
Bamberger Konversion
Bamberg, Germany