Nürnberg Sebalder Höfe

Schickenhof, 90403 Nürnberg, Germany
Picture © MORPHO-LOGIC

Das Sebaldusareal am östlichen Rand der Altstadt gelegen ist Teil einer städtischen Blockrandbebauung - derzeit ein Superblock. Die am publikumswirksamen östlichen Stadteingang gelegene Blockseite erhält ein neues Einkaufszentrum mit Büronutzung. Westlich und südlich daran anschließend wird das Blockinnere in kleinteilige Baufelder geteilt, die eine vielfältige Durchwegung des Superblockes ermöglichen. Als Motiv dient hierbei das räumliche Element des öffentlichen Hofes (z.B. Kupferschmiedshof). Dieses Element prägt in seiner vierfachen Addition die neuen öffentlichen Räume des Blockes.

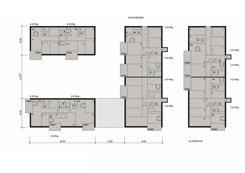
Die Baufelder sind mit Wohngruppen bebaut, zwischen denen sich je ein begrünter Wohnhof bildet. Alle Erdgeschosswohnungen erhalten vorgelagerte Gärten, die teilweise aufgrund der Topographie des Geländes gegenüber dem Straßenniveau angehoben sind. Angelehnt an die "Nürnbergische Hesperides" soll eine vielfältige, gut nutzbare und mit einem hohen Freizeitwert ausgestattete Abfolge grüner Räume entstehen. Dies sind die privaten Gärten mit unmittelbarem Anschluss an die Erdgeschosswohnungen, die den Wohngruppen zugeordneten, grünen Wohnhöfe, sowie die den Oberschosswohnungen zugeordneten begrünten und nutzbaren Dachgärten.

Planungszeit
2005-2008

Bauherr
alpha Projektentwicklung, City-West-GmbH &Co.KG Nürnberg

Planung
MORPHO-LOGIC
Michael Gebhard, Prof. Ingrid Burgstaller, M.Sc. Dipl.Ing. Architekten BDA Stadtplaner, Partnerschaftsgesellschaft
Mitarbeit: Katharina Satzinger

Ablauf
2005 Ausführungsempfehlung Städtebau, Städtebauliches Gutachten 2008 Rahmenplan

Veröffentlichung
competitionline 2005

Picture © MORPHO-LOGIC
Picture © MORPHO-LOGIC
Picture © MORPHO-LOGIC
Picture © MORPHO-LOGIC
Picture © MORPHO-LOGIC
Picture © MORPHO-LOGIC
Year
2005

Other Projects by MORPHO-LOGIC Architekten BDA Stadtplaner 

Weltacker Nürnberg
Nürnberg, Germany
Wohnen an der Wolnzach
Wolnzach, Germany
Hochschule Görlitz
Görlitz, Germany
Martinsried Ortsmitte
Martinsried, Planegg, Germany
Bamberger Konversion
Bamberg, Germany