Haus der Bayerischen Landkreise

Oskar-von-Miller-Ring, 80333 München, Germany
Photo © Michael Heinrich

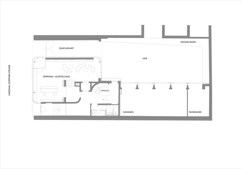
Bescheiden bis unscheinbar präsentierte sich das Büro-, Hotel- und Geschäftsgebäude aus den späten 50er Jahren in der Kardinal-Döpfner-Strasse 8 als Sitz des bayerischen Landkreistages in München. Die einzelnen Bauteile waren zwar alle noch intakt, entsprachen aber bei weitem nicht mehr den aktuellen Baustandards. Die innenräumliche Disposition des Gebäudes wies ebenso Mängel auf, welche durch gezielte konstruktive Eingriffe behoben wurden.

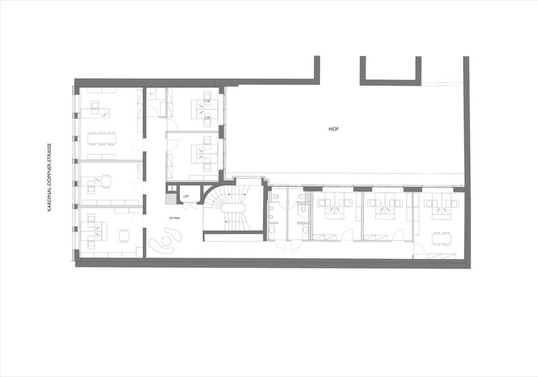
Der Friseurladen im Erdgeschoss wich einem repräsentativen Foyer- und Ausstellungsraum, der sich zum Hof hin öffnet und nun Ein- und Durchblicke erlaubt. Die restlichen Geschosse wurden in Büroflächen umgewandelt. In den Geschossebenen wurden die Liftvorzonen in die Büroeinheiten integriert. So entstand ein großzügiger Entree- und Wartebereich an der Nahtstelle vom Hauptgebäude zum Hofflügel.

Die neuen Materialien erhalten die Physiognomie des Hauses in ihrer Bescheidenheit und sind bestimmt von einer zurückhaltenden Noblesse. Auffälligstes neues Kennzeichen sind die Metallpassepartouts der Fenster. Eine goldbronzene Pulverbeschichtung stellt Bezüge zu den goldfarben eloxierten Fensterrahmen der 50er Jahre her.

Glänzend weiss glasierte Fliesen lassen durch ihre Handhandwerkliche Verlegung mit den daraus resultierenden feinen Unregelmäßigkeiten die Fassade in den Spiegelungen der Umgebung changieren.

Im Inneren des Hauses bestand die technisch-konstruktive Herausforderung darin die Bestandsdecken statisch, brandschutz- und schalltechnisch sowie akustisch wirksam zu sanieren ohne dabei deutlich an lichter Raumhöhe einzubüßen.

Planungszeit
2008-2010

Bauherr
Landkreisverband Bayern Körperschaft d. öffentl. Rechts

Planung
MORPHO-LOGIC
Michael Gebhard, Prof. Ingrid Burgstaller, M.Sc. Dipl.Ing. Architekten BDA Stadtplaner, Partnerschaftsgesellschaft
Mitarbeit: Christoph Pütz, Katharina Nicolait, Asja Boese, Ulrich Strebel

Projektpartner
Hirschhäuser Architekten, München

Auszeichnung
Architektouren 2011

Veröffentlichungen
DETAIL 5/2011, English Edition 4/2011 architektur.aktuell 6/2011
FAZ 26/06/2012
Büro Office Best of DETAIL 2013
Baukulturführer 52, 2010 Konservieren.Interpretieren.Transformieren BYAK, 2014

Photo © Michael Heinrich
Photo © Michael Heinrich
Photo © Michael Heinrich
Photo © Michael Heinrich
Photo © Michael Heinrich
Picture © MORPHO-LOGIC
Picture © MORPHO-LOGIC
Picture © MORPHO-LOGIC
Photo © MORPHO-LOGIC
Year
2010

Other Projects by MORPHO-LOGIC Architekten BDA Stadtplaner 

Weltacker Nürnberg
Nürnberg, Germany
Wohnen an der Wolnzach
Wolnzach, Germany
Hochschule Görlitz
Görlitz, Germany
Martinsried Ortsmitte
Martinsried, Planegg, Germany
Bamberger Konversion
Bamberg, Germany