Wohnhaus in Bern

Bern, Switzerland
Photo © Dominique Uldry
Photo © Dominique Uldry
Photo © Dominique Uldry
Photo © Dominique Uldry
Photo © Dominique Uldry
Photo © Dominique Uldry
Photo © Dominique Uldry
Photo © Dominique Uldry
Photo © Dominique Uldry
Photo © Dominique Uldry
Photo © Dominique Uldry
Photo © Dominique Uldry
Photo © Dominique Uldry
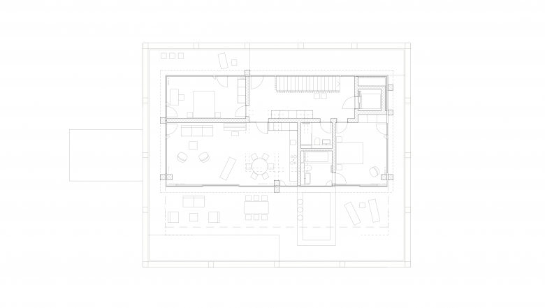
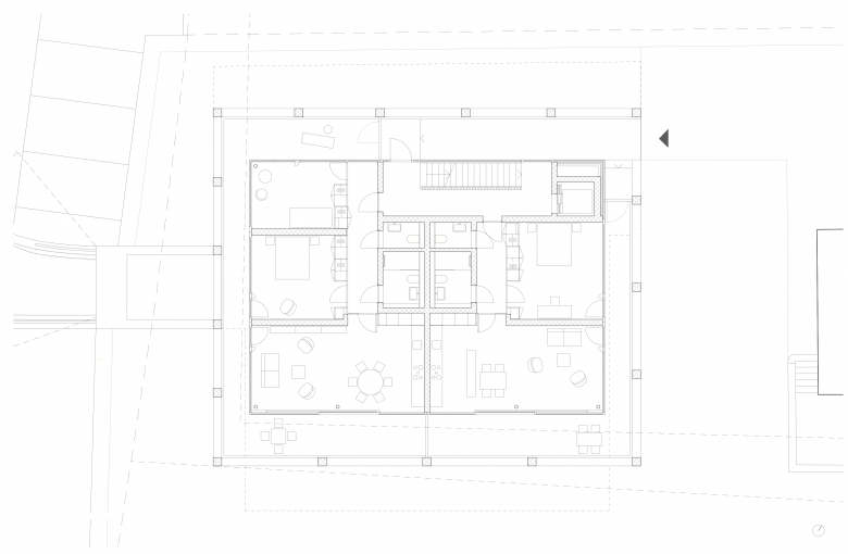
Drawing © DJA
Drawing © DJA
Drawing © DJA
Drawing © DJA
Photo © Zaborowsky
Photo © Zaborowsky
Photo © Zaborowsky
Photo © Zaborowsky
Photo © DJA
Photo © DJA
Year
2024
Auftraggeber
Lichtsteiner Foundation
Landschaftsarchitektur
Antòn Landschaft
Bauingenieur
Schnetzer Puskas Ingenieure
Termine
Planung und Ausführung 2020 - 2024
Aufgabe
Neubau eines Wohnhauses auf der Parzelle einer 1925 von Architekt Max Hofmann erstellten Villa. Die Villa wurde im städtischen Inventar als erhaltenswert eingestuft.
Programm
Wohnhaus mit 5 Mietwohnungen. Die geräumige Gartenanlage bleibt als Ganzes zur gemeinsamen Nutzung durch die Bewohner der Villa und des Neubaus erhalten.

Other Projects by Derendinger Jaillard Architekten 

Psychiatrische Universitätsklinik Rheinau
Haus Eber Zürich
Primarschule Riethüsli St.Gallen
Schul- und Sportzentrum Champagne
Einfamilienhaus in Bern