Schulhaus Borrweg Zürich

© atelier brunecky
© atelier brunecky
© dja
© dja
© dja
© dja
© dja
© Zaborowsky
Year
2019
Auftraggeber
Stadt Zürich
Landschaftsarchitektur
Linea landscape architecture
Bauingenieur
Schnetzer Puskas Ingenieure
Nachhaltigkeit, Gebäudetechnik, Bauphysik
Raumanzug
Wettbewerb
2019
Aufgabe
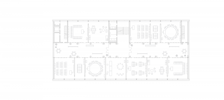
Ersatzneubau mit 18 Klassenzimmern als Tagesschule, Bibliothek / Mediathek, Mensa, Mehrzweckraum / Singsaal, Musikschule, Doppelturnhalle mit Nebenräumen für Schul- und Vereinssport, Schulschwimmanlage, Pausen- und Sportplätze

Other Projects by Derendinger Jaillard Architekten 

Psychiatrische Universitätsklinik Rheinau
Haus Eber Zürich
Primarschule Riethüsli St.Gallen
Schul- und Sportzentrum Champagne
Einfamilienhaus in Bern