Personalhaus Vogelsang Zürich
© Dominique Marc Wehrli
© Dominique Marc Wehrli
© Dominique Marc Wehrli
© Dominique Marc Wehrli
© Dominique Marc Wehrli
© Dominique Marc Wehrli
© Dominique Marc Wehrli
© Dominique Marc Wehrli
© Dominique Marc Wehrli
© dja
© dja
© dja
-
Year
-
2013
-
Auftraggeber
-
Kanton Zürich
-
Landschaftarchitektur
-
Berchtold. Lenzin
-
Kunst am Bau
-
Karim Noureldin
-
Wettbewerb
-
2010, 1. Preis
-
Aufgabe
-
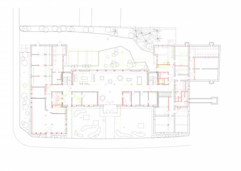
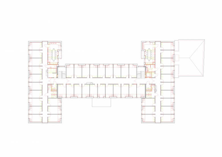
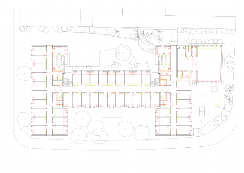
Grundlegende Sanierung des Personalwohnhauses für das Universitätsspital Zürich. Das 1955 von den Architekten Burzi + Hauenstein erstellte ehemalige Schwesternhaus ist ein erhaltenswerter Zeuge der Zürcher Architektur der 50er Jahre.
-
Programm
-
134 Zimmer, Sanitärräume, Freizeitraum und Gemeinschaftsküchen, Büros. Umsetzung behördliche Auflagen: Gebäudehülle, Asbestsanierung, Erdbebensicherheit, Brandschutz, Hindernisfreiheit.
Psychiatrische Universitätsklinik Rheinau
Primarschule Riethüsli St.Gallen
Schul- und Sportzentrum Champagne