Forensische Therapie Rheinau

© Dominique Marc Wehrli
© Dominique Marc Wehrli
© Dominique Marc Wehrli
© Dominique Marc Wehrli
© Dominique Marc Wehrli
© Dominique Marc Wehrli
© Dominique Marc Wehrli
© Dominique Marc Wehrli
© Dominique Marc Wehrli
© dja
© dja
© dja
© dja
Year
2007
Auftraggeber
Kanton Zürich
Landschaftsarchitektur
Studio Vulkan
Kunst am Bau
Monika Müller
Baumanagement
Bosshard und Partner Architekturbüro
Wettbewerb
2002, 1. Preis
Aufgabe
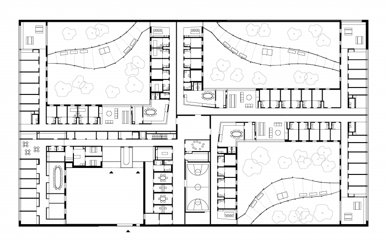
Neubau von drei Stationen für Forensische Therapie für die Psychiatrische Universitätsklinik Zürich in Neu-Rheinau. Neu-Rheinau ist im Bundesinventar der schützenswerten Ortsbilder von nationaler Bedeutung ISOS aufgeführt.
Programm
3 Stationen für je 9 Patienten mit Aufenthalts-, Arbeits- und Therapieräumen. Personal-, Eintritt- / Austritt- und Besucherbereiche. Gymnastikraum und Andachtsraum. Hoher Sicherheitsstandard. Minergiestandard.

Other Projects by Derendinger Jaillard Architekten 

Psychiatrische Universitätsklinik Rheinau
Haus Eber Zürich
Primarschule Riethüsli St.Gallen
Schul- und Sportzentrum Champagne
Einfamilienhaus in Bern