Landesgericht St. Pölten

St. Pölten, Austria
Photo © Thomas Ott

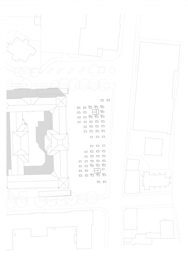
Die goldene Maske – Die Erweiterung und Erneuerung des Gerichtsgebäudes St. Pölten inkludiert einen neu entwickelten Zubau für Büronutzungen.Städtebaulich schließt der neue Zubau die Lücke zwischen altem Gerichtsgebäude und der angrenzenden Justizanstalt in Form einer kohärenten Ergänzung des denkmalgeschützten Baus mit einem zeitgenössischen Zubau, der einerseits selbstbewusst und eigenständig als Solitär nach außen wahrnehmbar ist, zugleich jedoch den historischen Kontext respektiert und zwischen moderner und historischer Formensprache zu vermitteln vermag.

Die drei Geschosse des Altbaus werden bei gleichbleibender Traufenhöhe barrierefrei mit dem neuen fünfgeschossigen Baukörper verknüpft, in dem in erster Linie Büroräume für das Oberlandesgericht, die Staatsanwaltschaft und das Bezirksgericht untergebracht werden. Der Platz direkt vor dem bestehenden Gebäude wird zu einem attraktiven urbanen Platz mit Aufenthaltsqualitäten und angegliederter Tiefgarage umgestaltet.

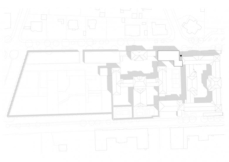
Das Entwurfskonzept teilt das Raumprogramm des Erweiterungsbaus in dienende und bediente Teile auf. Daraus resultieren zwei separate Baukörper. Der Hauptbaukörper beherbergt nur Büroräume und die Amtsbibliothek, der dienende Baukörper die Stiegen, den Fahrstuhl, die WCs und Serverräume. Während dadurch der Hauptbaukörper im Inneren mehr Flexibilität erlangt, kommt dem Nebenbaukörper bei der barrierefreien Anbindung an den Altbau und der Vermittlung zwischen Alt und Neu eine wichtige Rolle zu. Durch eine gläserne, architektonische Fuge in Form des Erschließungskörpers wird sowohl eine Berührung und Verbundenheit als auch ein klarer Abstand artikuliert. Die Trennung der beiden Funktionsbaukörper wird auch dadurch verstärkt, dass sie in ihrem Erscheinungsbild und ihrer Materialität bewusst unterschiedlich behandelt werden.

Insgesamt nimmt das neue Gebäude die Eigenschaften des historischen auf, ohne jedoch auf eine eigenständige, unverwechselbare und zeitgemäße Artikulation zu verzichten. Durch den dem Material eigenen Glanz erhält das Gebäude einen angenehmen und warmen Charakter, der sich im tagesrhythmischen und auch jahreszeitlichen Wechsel der Lichtverhältnisse kontinuierlich verändert und so das Gebäude buchstäblich zum Leben erweckt.

Photo © Thomas Ott
Photo © Thomas Ott
Photo © Thomas Ott
Drawing © Kronaus Mitterer Architekten
Drawing © Kronaus Mitterer Architekten
Year
2011
Project Status
Built
Client
BIG - Bundesimmobiliengesellschaft m.b.H.
Partner
KNOWSPACE
Partner
Vasko+Partner
Wettbewerb 2007
1. Preis

Other Projects by Kronaus Mitterer Architekten 

Gymnasium Schulstraße
Berlin, Germany
Volksschule Erlaaer Schleife
Wien, Austria
Universitätscampus IT:U Linz
Linz, Austria
Brücke MeidLine
Wien, Austria
Bildungcampus Gasometerumfeld
Wien, Austria