Um- und Anbau Gruebenhütte 2521 M.ü.M
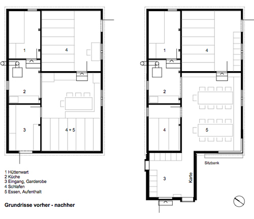
Die Gruebenhütte ist eine kleine Selbstversorgerunterkunft für Alpinisten und Wanderer, die das Einfache schätzen. Sie thront auf einem Felssporn über dem Gruebengletscher im Grimselgebiet. Ausschlaggebend für den Umbau war das Missverhältnis von 28 Schlafplätzen zu 8 Sitzplätzen und damit verbunden ein fehlender eigenständiger Aufenthaltsraum. Um dies zu verbessern, wurde der Grundriss überarbeitet, die Nutzungen der Räume umverteilt und ein neuer Eingangsbereich als Anbau geschaffen.
Der Anbau wurde im Tal vorfabriziert und als Ganzes mit dem Helikopter auf 2521m transportiert. Um einen derartigen Lufttransport zu ermöglichen, musste das Gewicht der Konstruktion gering gehalten werden, was durch eine Kompaktkonstruktion aus Holz mit äusserer Kupferverkleidung erreicht wurde.
swisstopo, Zeitschrift 113, April 2006
- Year
- 2005





