Sammlungs- und Forschungszentrum Hall
Kostbare Sammlungen – Das Gedächtnis der Menschen ist bekanntlich kurz, hier wird es bewahrt. Keine ganze, so doch zumindest ein Fuß einer 3.000 Jahre alten Mumie, eine Million konservierter Alpenschmetterlinge, gotische Skulpturen, steinzeitliche Keile, Streichinstrumente des legendären Tiroler Geigenbauers Jakob Stainer. Die Liste ist lang. Im neuen Sammlungs- und Forschungszentrum Hall lagern Millionen historischer Kostbarkeiten aus Tiroler Landesmuseen mit einem geschätzten Wert von über einer Milliarde Euro.
„Wir fanden, dass das Gebäude Selbstbewusstsein und Beständigkeit ausstrahlen muss, sicher und unnahbar wirken soll.“
Reduziert und hermetisch – Als Tresor wacht der quadratische, flache Monolith über die Tiroler Kulturschätze, die aus zahlreichen Depots und Sammlungen der Tiroler Landesmuseen an diesem Ort zusammengeführt worden sind; das Gedächtnis Tirols gesammelt in einer von außen dunklen und geheimnisvollen Schatzkiste zu Füßen der mächtigen Tiroler Alpen.
Die mit grauen, glasfaserverstärkten Betonplatten (FibreC) verkleidete Fassade mit seinen unregelmäßigen faustkeilförmigen Ausbuchtungen gibt sich hermetisch, wehrhaft wie eine Rüstung. Wenige reduzierte Perforierungen durchbrechen die panzerartige Haut: das Tor für die LKW Schleuse, Lüftungsschlitze, die gesetzlich vorgeschriebenen Fenster zur Tischlerei und der Haupteingang. Rot leuchten die Innenseiten des Tores, dann wenn es an den Arbeitstagen geöffnet ist.
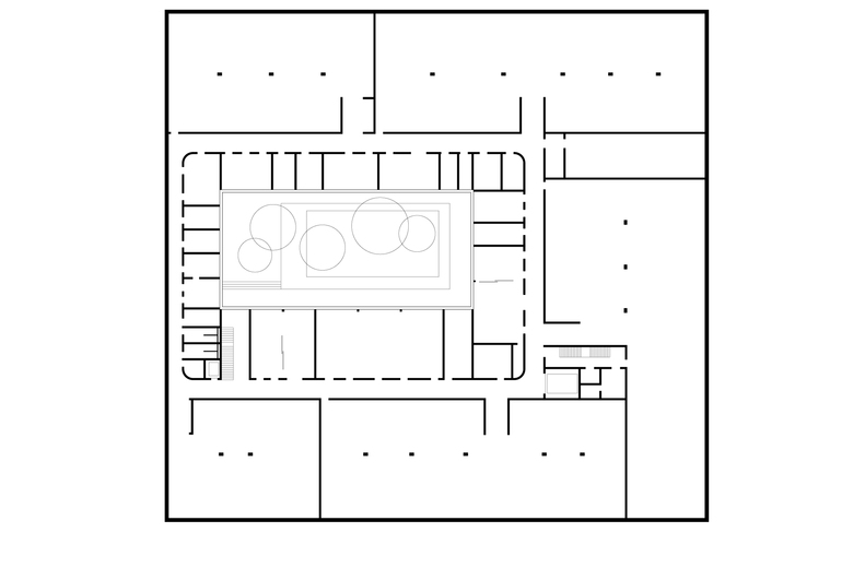
Zwiebelprinzip – Das räumliche Konzept ist einfach und klar. Im Außenring befinden sich nach dem Zwiebelprinzip 7.500m² Depotflächen, dann folgt ein Gang- bzw. Erschließungsring, im Kern gruppieren sich die hellen Arbeits- und Atelierräume für die ca. 35 MitarbeiterInnen um das introvertierte begrünte Atrium, das sich die WissenschaftlerInnen als einen „kontemplativen Denkkreis“ für ihr konzentriertes Forschen und Arbeiten gewünscht hatten.
Lagern, Forschen, Restaurieren – Zwei der drei Geschosse sind in der Erde versenkt und erreichen ohne aufwendige Klimatechnik für den klimatisch autarken Depotbereich eine optimale Temperatur von 19 Grad Celsius und 50 Prozent Luftfeuchtigkeit. In seiner Silhouette wird der Baukörper entsprechend der Hanglage eingeschnitten.
„Das ist mehr als ein Depot. Hier wird Expertise einziehen. Das ist ein sensationeller Qualitätssprung!“ Wolfgang Meighörner, Direktor der Tiroler Landesmuseum
Der im Außenring gelagerte Fundus ist durch Schleusen über den Erschließungsgang von den Büros, den Werkstätten, Pack-, Entlade- und Konservierungsräumen, dem Fotoatelier und der Tischlerei auf kurzem Weg erreichbar. „Für uns RestauratorInnen hat sich die Arbeitssituation zu früher erheblich verbessert“, so Laura Resenberg, Leiterin Restaurierungswerkstätten. „Nun ist es möglich, sich auf die Schnelle mal ein Exponat anzuschauen. Die passenden Ateliers liegen dem jeweiligen Depotbestand direkt gegenüber. Sich mit unseren Wägen barrierefrei auf einer Ebene zu bewegen, macht alles viel einfacher.“
Forschen, nachdenken und mit FachkollegInnen diskutieren – konzentriert an einem Ort, in Ruhe und direkt am Objekt. Das Gedächtnis der Menschen ist kurz, es zu bewahren ein letztlich aufwändiger und doch sich lohnender Prozess.
- Jahr
- 2017
- Bauherrschaft
- Land Tirol - Abteilung Hochbau
- Team
- Corinna Toell (PL), Joseph Suntinger, Wolfgang Fischer, Theresa Wauer, Susann Murtezani, Diana Nemeth, Eveline Leichtfried
- Statik
- petz zt-gmbh
- Bauphysik
- Schöberl & Pöll GmbH
- Thermische Gebäudesimulation
- Jung Ingenieure
- Gebäudetechnik
- DI Dieter Schwaninger, HG Engineering
- Lichtplanung
- Pokorny Lichtarchitektur
- Landschaftsplanung
- idealice Landschaftsarchitektur
- Brandschutzplanung
- FSE Ruhrhofer Schweitzer GmbH
- Leitsystem
- Lichtwitz Leinfellner visuelle Kultur KG
- ÖBA
- Gelmini & Baumgartner GmbH











