Gymnasium und Mittelschule in Deutsch-Wagram
Eine für alle – Bisher mussten die Schüler aus dem niederösterreichischen Deutsch-Wagram, wenn sie ein Gymnasium besuchen wollten, nach Gänserndorf oder Wien pendeln.
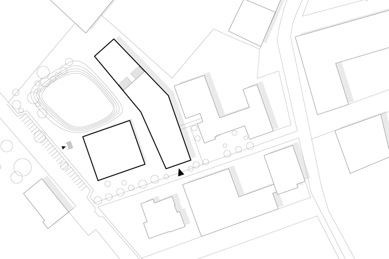
Der Gemeinderat beschloss in die lokale Bildung zu investieren und schrieb einen Wettbewerb aus: für ein neues Oberstufenrealgymnasium mit integrierter Mittelschule und Doppelsporthalle, außerdem für die Sanierung der bestehenden Hauptschule. Das Schulareal liegt an einem schönen Grundstück mit Park und Teich, das auch die Kleinsten aus dem Kindergarten und der Volkschule zum Spielen nutzen.
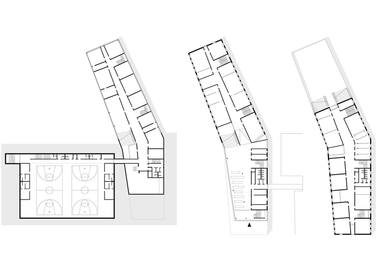
Um den Teich geschmiegt – Die schöne Parksituation wollten wir bewahren und schützen. Statt einer Blockrandbebauung entschieden wir und daher für die zwei den Park begleitenden Baukörper: Eine Zweifachsporthalle und einen langes „Schulgelenk“, das sich um den Teich schmiegt. Der drei- bis viergeschossige Riegel folgt sowohl im Grundriss als auch im Schnitt der vorgefundenen Landschaft.
Das umlaufende Glasband im Erdgeschoß verleiht dem Bau Leichtigkeit und lässt ihn über der Parklandschaft schweben. Die Fassade haben wir mit 175 unregelmässig verteilten, großen quadratischen Fenstern locker gegliedert. In diesen Fensternischen sitzen und lernen die Jugendlichen übrigens überaus gerne. Mit den farblich von weiß bis hellblau abgestuften Aluminiumplatten erhält die Fassade im Kontrast zur grünen Umgebung eine heitere Wolkenstimmung. Eine luftige Fassung der Parkanlage.
Unter freiem Himmel – Alles unter einem Dach und viele Räume gemeinsam genutzt: Im Untergeschoss ist es laut und inspiriert, dort haben wir die Kreativräume mit direktem Zugang zum Bioptop untergebracht, darüber die naturwissenschaftlichen Labors und den Eingangstrakt mit Bibliothek, Buffet und Garderobe. Im 1. Obergeschoss befindet sich die Mittelschule mit zwölf, darüber das Gymnasium mit acht Stammklassen.
Auf der großen, direkt angrenzenden Dachterrasse mit holzgedeckten Liegeplattformen und Sitzstufen entspannen die SchülerInnen nicht nur in den Pausen, sondern genießen auch mal den Unterricht unter freiem Himmel.
Chillen, Lernen, Lesen – Unter der Auskragung der langen Schule befindet sich der gemeinsame Haupteingang von Gymnasium und Mittelschule, der die SchülerInnen in die Zentralgarderobe und in eine helle einladende Aula führt. Das schöne Herzstück bildet hier die von allen Schultypen gemeinsam genutzte Bibliothek, die sich großzügig über alle drei Geschoße erstreckt. Hohe, gemütliche Sitzstufen laden dort die Kinder und Jugendlichen zum Lesen und Chillen ein oder dienen als Tribüne für Vorträge und Präsentationen.
Günstig und zertifiziert – Die Schule wurde statt der ursprünglich veranschlagten 17 Millionen um 15,6 Millionen errichtet. Hier wurden während der gesamten Planung von unserem Büro Synergien gesucht und vorgeschlagen.
Die Sporthalle haben wir - soweit es der hohe Grundwasserstand erlaubt - eingegraben. Wir fanden, sie entspricht auf diese Weise mehr dem Maßstab des gegenüberliegenden Kindergartens und der Volksschule.
Das Projekt ist übrigens die erste als Passivhaus zertifizierte Bundesschule in Österreich mit hochgedämmter thermischer Gebäudehülle, einer Lüftungsanlage mit Wärmerück- und Energiegewinnung mittels Grundwasserwärmepumpen und Photovoltaikanlage, sowie einer Versickerung des Regenwassers auf Eigengrund.
- Jahr
- 2011
- Project Status
- Gebaut
- Bauherrschaft
- NÖ Landesimobiliengesellschaft m.b.h.
- Team
- Anna Gruber (PL), Henning Grahn, Hannah Aufschnaiter, Christine Hax-Noske, Christian Szalay, Joseph Suntinger, Wolfgang Fischer
- Statik
- petz zt-gmbh
- Bauphysik
- Schöberl & Pöll GmbH
- Gebäudetechnik
- BPS Engineering
- Kostenmanagement
- ah3 Architekten ZT GmbH
- ÖBA
- Paul Pfaffenbichler ZT GmbH










